Acesso à hierarquia superior.

Aveiro - 8/16

 

 

 

 
  Empedrados na Praça da República (1903) – ///////   Empedrados na Praça da República (1966) – ///////   Edifício onde está a Galeria-Museu Municipal (1986) – ///////  
 
 

 

 

 
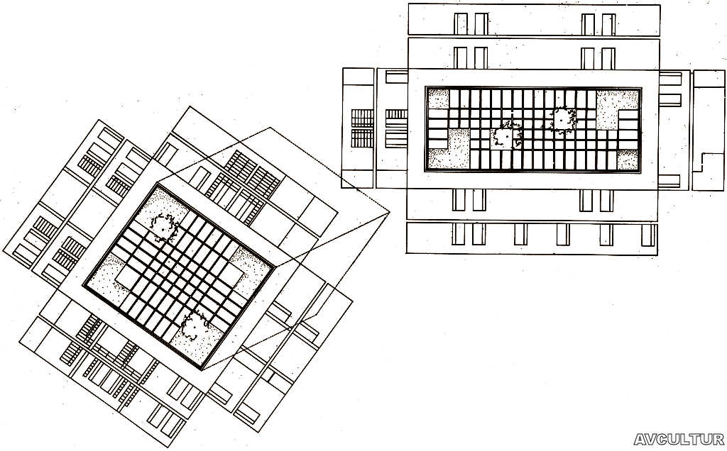
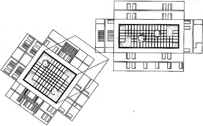
  Galeria Municipal de Aveiro (1986) – ///////   ISCA – ///////   ISCA – ///////  
 
 

 

 

 
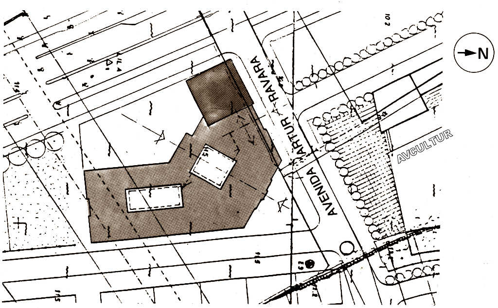
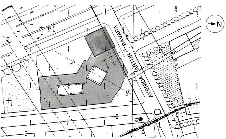
  Fotografia antiga do centro de Aveiro – ///////   Residência de Aveiro na Rua João Mendonça – ///////   Área crítica de Aveiro em 1987 – ///////  
 

 

Página anterior

Índice Geral

Página seguinte